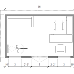
STEEL ECO BACKYARD KIT-1 By admin Posted May 21, 2021 In STEEL ECO BACKYARD KIT-12021-05-212021-05-21https://easyupecostructures.com/wp-content/uploads/2024/07/easy-up-eco-structures-logo-resized.pngEasy Up Eco Structureshttps://easyupecostructures.com/wp-content/uploads/2021/05/backyard1.jpg200px200px 0 0 STEEL ECO BACKYARD KIT NEED HELP DESIGNING YOUR STEEL ECO-KIT? Request a FREE Design Consult Now! LATEST POSTSEasy Up Eco Structures Blog 1GALVANIZED STEEL BARN BUILDING KIT SHINES IN AHWATUKEE FOOTHILLSEasy Up Eco Structures Blog 2